Proje Adı: ANTHEA
Tasarım: Studyo Zon
Türü: Ulusal Yarışma
Düzenleyen: Gante Mutfak & Arkitera
Proje Yılı: Aralık 2020
Durum: 2.Ödül
Tasarım: Studyo Zon
Türü: Ulusal Yarışma
Düzenleyen: Gante Mutfak & Arkitera
Proje Yılı: Aralık 2020
Durum: 2.Ödül
‘24 saat yaşayan mutfak’
Mutfak bu projede, sadece yemek hazırlanan alan olmanın dışında yaşam tarzları ve günlük aktiviteleri birbirinden çok farklı olan kişilerin farklı ihtiyaçlarına cevap veren, onları çeşitli aktivitelerde bir araya getiren bir mekândır.
‘Mutfağın açık alanla ilişkisini yeniden kurmak’
Günümüzde giderek artan açık-yeşil alan ihtiyacını karşılama ve mutfağın özünde olan; açık alanla bağını yeniden kurma amacıyla, mutfak işlevlerine katkı sağlayacak bir ‘teras’ kurgulandı.
‘Mekanlar arası sınırları esnetmek’
Günümüzde yaşam alanı eylemleri ile mutfak eylemleri arasındaki sınırların erimesi, tasarımda mutfağın, yaşam alanı ve açık alanla iç içe olması fikrini ortaya çıkardı.
Teras-yaşam alanı-mutfak arasında hareketli cam bölücüler kurgulandı, istenildiğinde paneller açılarak bu üç mekân tek bir mekân gibi kullanılabilirken istenildiğinde kapatılarak üç ayrı mekâna dönüşebilir.
‘Kullanıcıyı yaşam alanına yönlendirmek’
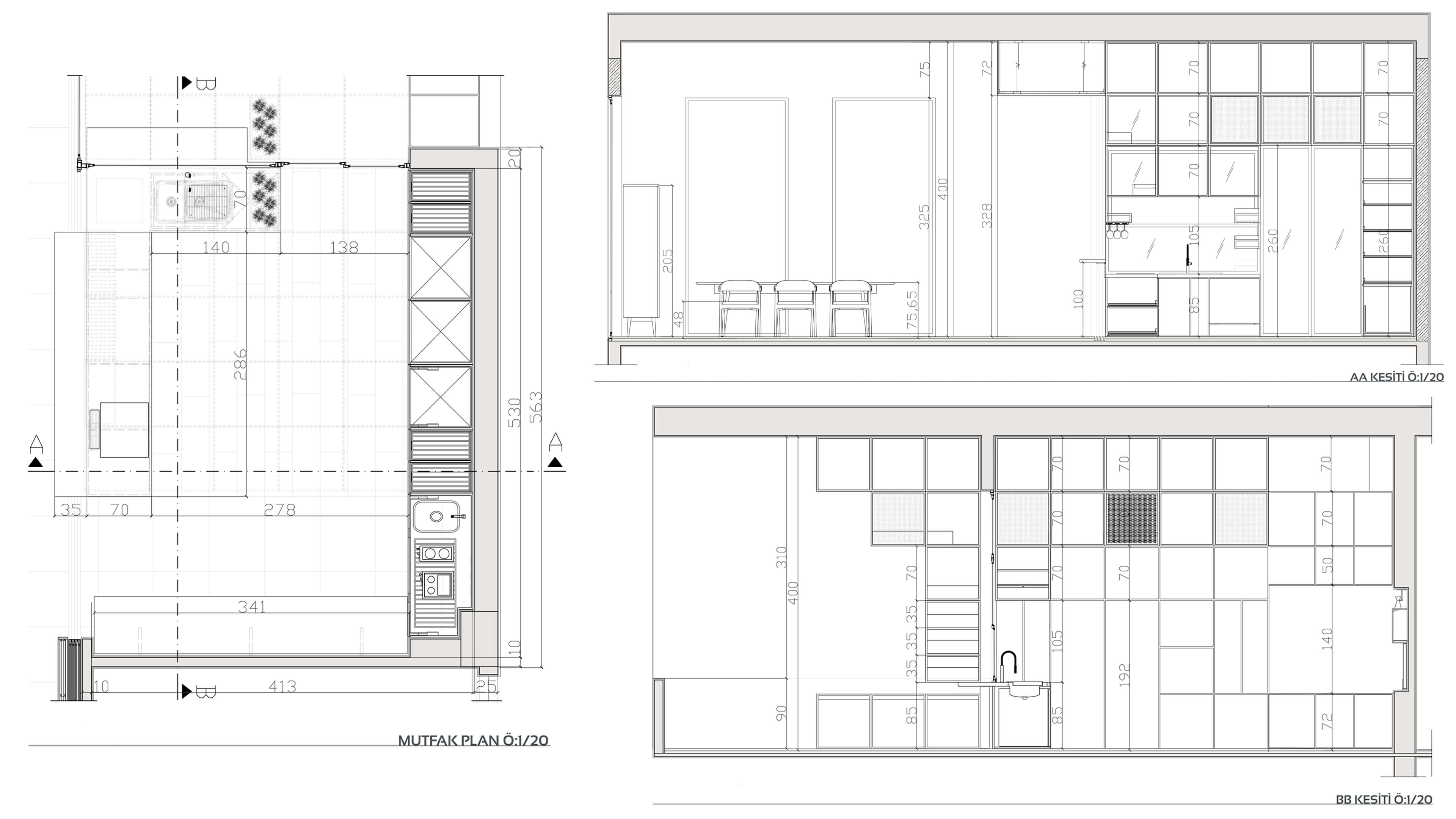
Kullanıcının yaşam alanıyla ilişki kurabilmesi adına ana tezgâh yaşam alanına dönük konumlandırıldı. Depolama için tezgâh altı ve tezgâhın arkasındaki duvar işlevlendirilerek kullanıcının kısa hareketlerle aradığına ulaşabilmesi, zamanını verimli değerlendirmesi ve ana eylemleri yaşam alanına dönük gerçekleştirmesi amaçlandı.
‘Tavanı işlevlendirmek’
Kat yüksekliğinin fazla olması sebebi ile tavanın da işlevsel olarak kullanılması amaçlandı ve 70x70 cm ölçülerinde çelik küp strüktür modülleri tavanda bir araya getirildi.
Üst sıra, kapalı olup havalandırma ve aydınlatma tesisatını gizlerken, alt sıralarda depolama amaçlı hareketli tezgâh üstü modüller, led aydınlatma modülleri, saksı bitkisi yerleştirilebilir sabit modüller bulunur. Tavan strüktürü terasa doğru uzanarak aynı işlevleri sürdürür.
‘Pratik Kullanım’
En değerli şeyi ‘zaman’ olan modern kent insanı için mutfakta geçirilen sürenin verimli kullanılabilmesi önemlidir.
Mutfakta pratik kullanımı sağlamak tasarımın ana amaçlardan biridir. Bunun için depolamada; tüm malzemelere eşit erişim imkânı sunan çekmece sistemleri, kiler için raylı raflar, küçük ev aletlerinin pratik kullanımı için tüm aletlerin bir arada bulunabileceği ve ek tezgâh alanı yaratan bir çekmece, sıcak içecek makinelerinin ve malzemelerinin bulunduğu dolap içinde gizlenmiş pratik hazırlık nişi gibi çözümler üretildi.
‘Sürdürülebilir tasarım’
Doğal aydınlatma ve havalandırmanın maksimum düzeyde olacağı bir tasarım anlayışı benimsendi. Tüm mekânda geri dönüştürülebilir doğal malzemeler kullanıldı.
Organik atıklar için kompost sistemi ve diğer atıklar için ayrıştırma alanı önerildi. Led aydınlatmalar ve sensörlü anlık kaynar su musluğu kullanılarak enerji tasarrufu sağlandı.













